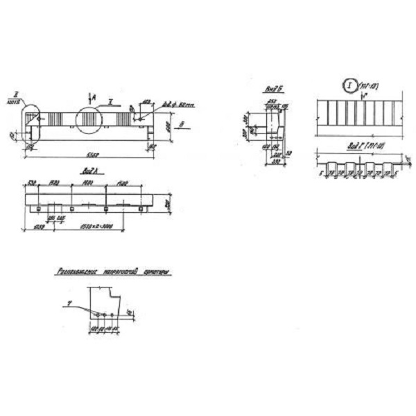
РЛР 6.56 ригели

Чертеж изделия:
Характеристики изделия:
ПараметрЗначение
длина5560 мм
ширина390 мм
высота600 мм
масса2600 кг
нормативный документСерия 1.020-1/83

РЛР 6.56  Ригели  Серия 1.020-1/83.