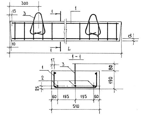
10ПП 14 перемычки плитные
Характеристики изделия:
| Параметр | Значение |
|---|---|
| длина | 1420 мм |
| ширина | 510 мм |
| высота | 190 мм |
| масса | 344 кг |
| нормативный документ | Серия 1.038.1-1 |
Цена:
Рассчитать стоимость10ПП 14 Железобетонные перемычки плитного типа Серия 1.038.1-1.
