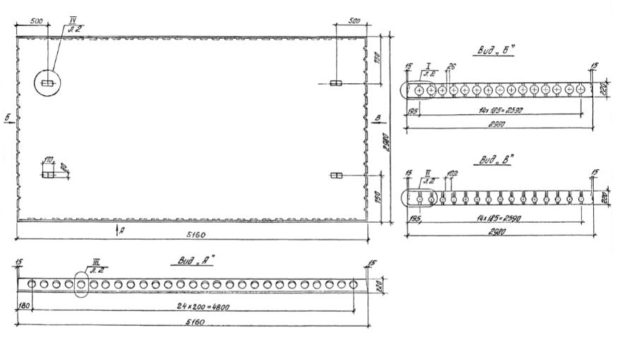
ПК 52.30 плиты рядовые
Характеристики изделия:
| Параметр | Значение |
|---|---|
| длина | 5160 мм |
| ширина | 2980 мм |
| высота | 220 мм |
| масса | 4700 кг |
| нормативный документ | Серия 1.041.1-3 |
Цена:
Рассчитать стоимостьПК 52.30 Плиты рядовые Серия 1.041.1-3.
| Параметр | Значение |
|---|---|
| длина | 5160 мм |
| ширина | 2980 мм |
| высота | 220 мм |
| масса | 4700 кг |
| нормативный документ | Серия 1.041.1-3 |
ПК 52.30 Плиты рядовые Серия 1.041.1-3.