БШЛ 63-42 блок шахты лифта основной

Чертеж изделия:
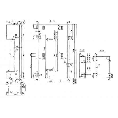
Характеристики изделия:
ПараметрЗначение
длина2270 мм
ширина1000 мм
высота4180 мм
масса4820 кг
нормативный документСерия 1.089.1-1

БШЛ 63-42 Блоки шахт лифтов Серия 1.089.1-1.