1Вн-43.15-2п(л)

Чертеж изделия:
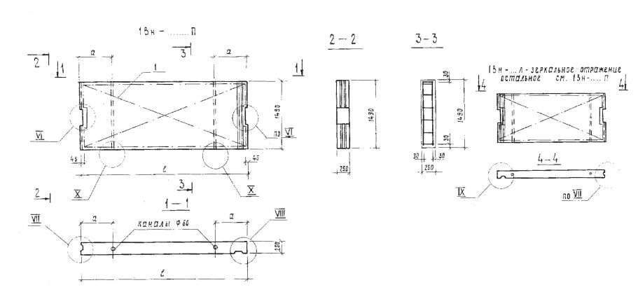
Характеристики изделия:
ПараметрЗначение
длина4300 кг
ширина250 мм
высота1490 мм
масса4300 кг
нормативный документСерия 1.131-17

1Вн-43.15-2п   Нижние изделия для стеновых панелей группы 1ПСВ  (Серия 1.131-17).

1Вн-43.15-2л