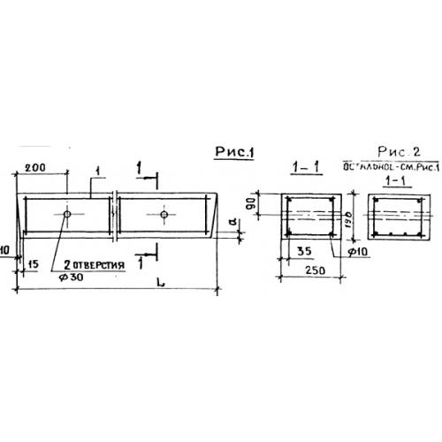
1ПР 18

Чертеж изделия:
Характеристики изделия:
ПараметрЗначение
длина1810 мм
ширина250 мм
высота190 мм
вес214 кг
серия1.138-10

1ПР 18 Перемычки брусковые по серии 1.138-10.