Б 31
Характеристики изделия:
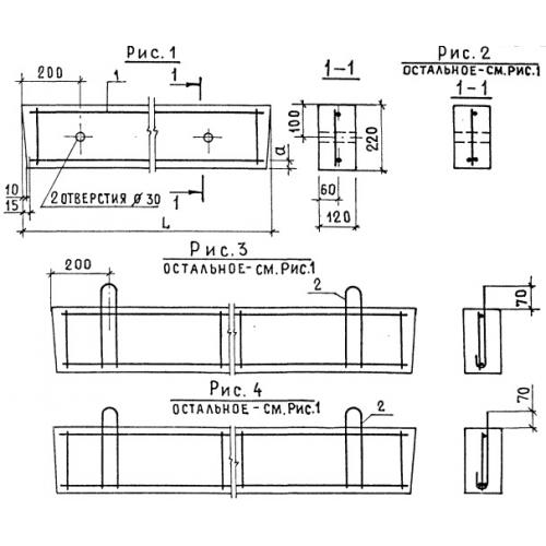
| Параметр | Значение |
|---|---|
| длина | 3100 мм |
| ширина | 120 мм |
| высота | 220 мм |
| вес | 205 кг |
| серия | 1.139-1 |
Цена:
Рассчитать стоимостьБ 31 Перемычки брусковые по серии 1.139-1.
| Параметр | Значение |
|---|---|
| длина | 3100 мм |
| ширина | 120 мм |
| высота | 220 мм |
| вес | 205 кг |
| серия | 1.139-1 |
Б 31 Перемычки брусковые по серии 1.139-1.
.jpg)