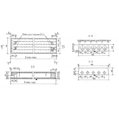
БПК 52.10

Чертеж изделия:
Характеристики изделия:
ПараметрЗначение
длина5200 мм
ширина990 мм
высота220 мм
вес1563 кг
серия1.141.1 КР-3

БПК 52.10 Панели с круглыми пустотами без выпускных ребер по серии 1.141.1 КР-3.