ПВ 63.9.35
Характеристики изделия:
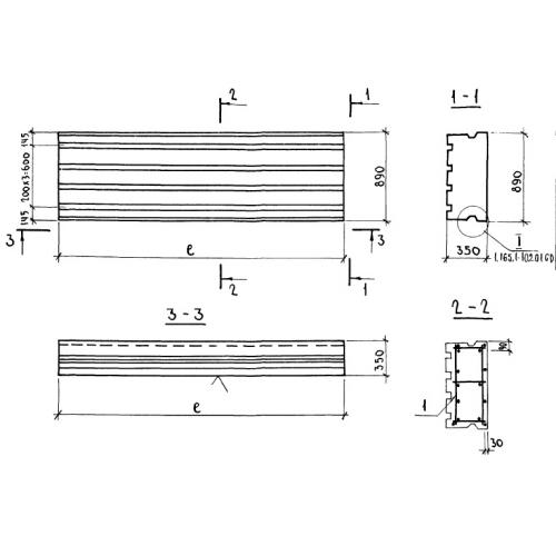
| Параметр | Значение |
|---|---|
| длина | 6270 мм |
| ширина | 890 мм |
| высота | 350 мм |
| вес | 1370 кг |
| серия | 1.165.1-10 |
Цена:
Рассчитать стоимостьПВ 63.9.35 Вентилируемые панели покрытия по серии 1.165.1-10.
| Параметр | Значение |
|---|---|
| длина | 6270 мм |
| ширина | 890 мм |
| высота | 350 мм |
| вес | 1370 кг |
| серия | 1.165.1-10 |
ПВ 63.9.35 Вентилируемые панели покрытия по серии 1.165.1-10.
