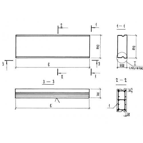
П 33.9.30

Чертеж изделия:
Характеристики изделия:
ПараметрЗначение
длина3270 мм
ширина890 мм
высота300 мм
вес630 кг
серия1.165.1-10

П 33.9.30 Панели покрытия по серии 1.165.1-10.