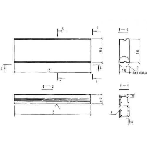
П 33.9.35

Чертеж изделия:
Характеристики изделия:
ПараметрЗначение
длина3270 мм
ширина890  мм
высота350 мм
вес740 кг
серия1.165.1-10

П 33.9.35 Панели покрытия по серии 1.165.1-10.