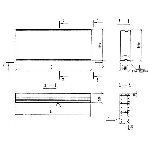
П 45.12.30
Характеристики изделия:
| Параметр | Значение |
|---|---|
| длина | 4470 мм |
| ширина | 1190 мм |
| высота | 300 мм |
| вес | 1170 кг |
| серия | 1.165.1-10 |
Цена:
Рассчитать стоимостьП 45.12.30 Панели покрытия по серии 1.165.1-10.
| Параметр | Значение |
|---|---|
| длина | 4470 мм |
| ширина | 1190 мм |
| высота | 300 мм |
| вес | 1170 кг |
| серия | 1.165.1-10 |
П 45.12.30 Панели покрытия по серии 1.165.1-10.
