РДС 4.71

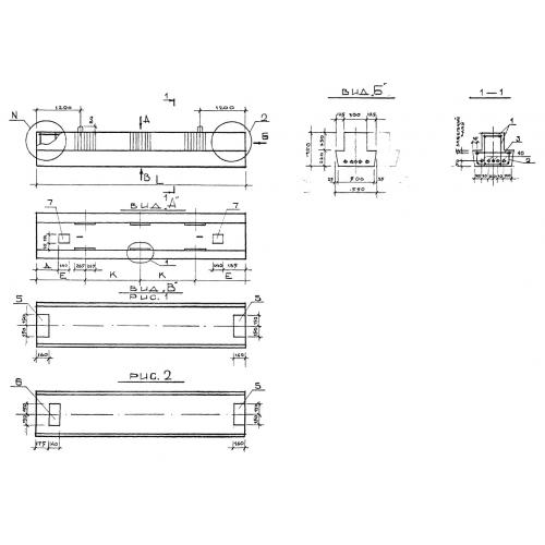
Чертеж изделия:
Характеристики изделия:
ПараметрЗначение
длина7070 мм
ширина550 мм
высота450 мм
вес3250 кг
серия1.220.1-2

РДС 4.71 Ригели покрытий по серии 1.220.1-2.