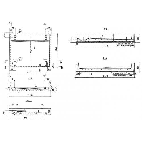
КВ 18.22

Чертеж изделия:
Характеристики изделия:
ПараметрЗначение
длина1840 мм
ширина2200 мм
высота1250 мм
масса1250 кг
нормативный документСерия 1.238-1

КВ 18.22  Козырьки входов Серия 1.238-1.