СПН 4 АV

Чертеж изделия:
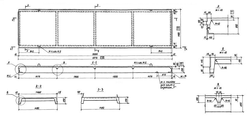
Характеристики изделия:
ПараметрЗначение
длина5970 мм
ширина1490 мм
высота250 мм
масса1200 кг
нормативный документСерия 1.865-1

Серия 1.865-1

Плита ребристая СПН 4 АV представляет собой железобетонную прямоугольную конструкцию с продольными ребрами. Ребра плиты рассчитаны как свободно опертые однопролетные балки. Изделия могут выпускаться как со сплошной полкой, так и с квадратными отверстиями в крайнем поле плиты для пропуска вентиляционных шахт. Предназначены данные строительные элементы для покрытий производственных зданий сельского хозяйства с несущими конструкциями (фермы, балки и др.), расположенными с шагом шесть метров. 

Маркировка

В соответствии с рабочими чертежами каждому железобетонному изделию присваиваются марки, которые состоят из буквенных и цифровых индексов. Маркировка плиты СПН 4 АV расшифровывается следующим образом:

1. СПН – предварительно напряженная ребристая плита,

2. 4  номинальный пролет (дм),

3. АV  – класс напрягаемой арматуры.