Л 13

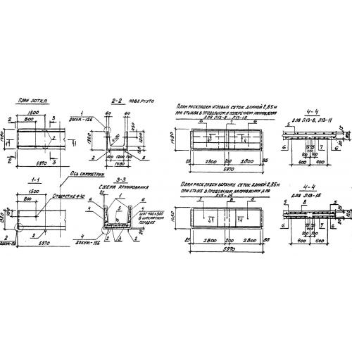
Чертеж изделия:
Характеристики изделия:
ПараметрЗначение
длина5970 мм
ширина1480 мм
высота1320 мм
масса6300 кг
нормативный документСерия 3.006.1-2/82

Л 13  Лотки теплотрасс Серия 3.006.1-2/82.