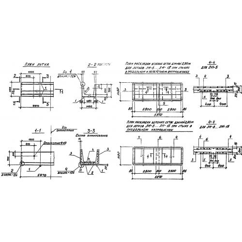
Л 11 лотки

Чертеж изделия:
Характеристики изделия:
ПараметрЗначение
длина5970 мм
ширина1480 мм
высота700 мм
масса3600 кг
нормативный документСерия 3.006.1-2/87

Л 11 Лотки теплотрасс Серия 3.006.1-2/87.