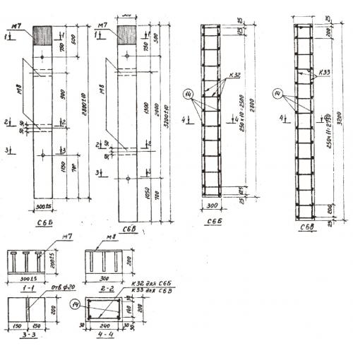
С 6 Б столб забора

Чертеж изделия:
Характеристики изделия:
ПараметрЗначение
длина2800 мм
ширина200 мм
высота300 мм
масса400 кг
нормативный документСерия 3.017-1

С 6 Б   Столбы оград Серия 3.017-1.