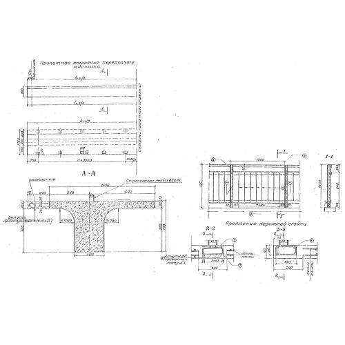
Блок №12

Чертеж изделия:
Характеристики изделия:
ПараметрЗначение
длина12000 мм
ширина1450 мм
высота700 мм
вес12000 кг
серия3.501-96

Блок №12 Блоки пролетных строений по серии 3.501-96.