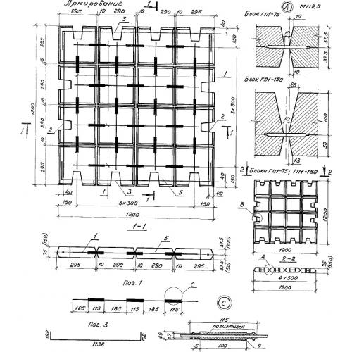
ГП 1 блок укрепления

Чертеж изделия:
Характеристики изделия:
ПараметрЗначение
длина1200 мм
ширина1200 мм
высота75 мм
вес230 кг
серия3.501.1-156

ГП 1 Плиты укрепления гибкие по серии 3.501.1-156.