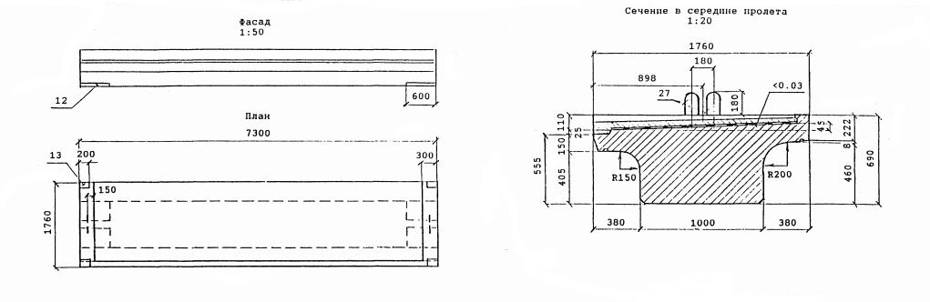
БС 1.73

Чертеж изделия:
Характеристики изделия:
ПараметрЗначение
длина7300 мм
ширина1760 мм
высота690 мм
вес14500 кг
серия3.501.1-175.93

БС 1.73  Балки плитные  с ненанрягаемой арматурой для станционных пролетных строений по серии 3.501.1-175.93.