Ф 450-74

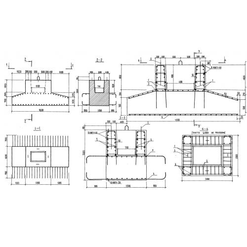
Чертеж изделия:
Характеристики изделия:
ПараметрЗначение
длина3400 мм
ширина4500 мм
высота2050 мм
вес22500 кг
нормативный документСерия 3.503.1-90

Ф 450-74 Симметричные блоки фундамента по Серии 3.503.1-90.