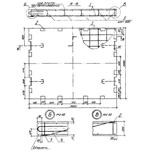
1ПО 25

Чертеж изделия:
Характеристики изделия:
ПараметрЗначение
длина3000 мм
ширина2500 мм
высота250 мм
вес4800 кг
серия3.505.1-16

1ПО 25 Плиты омоноличенные по серии 3.505.1-16.