ПТ-СД

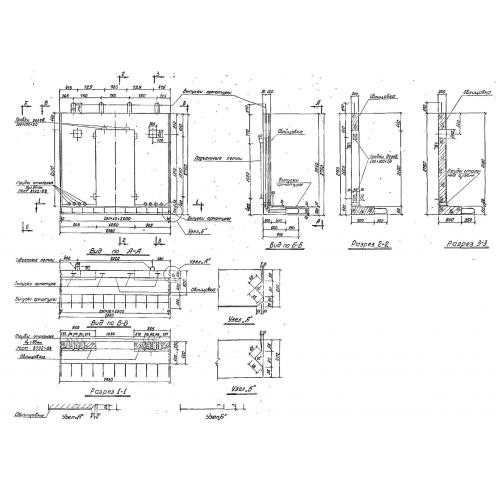
Чертеж изделия:
Характеристики изделия:
ПараметрЗначение
длина2980 мм
ширина950 мм
высота2750 мм
масса3500 кг
нормативный документСерия 3.507-1

ПТ-СД Стеновой блок подземных тоннелей по Серии 3.507-1.