П 6.2-1

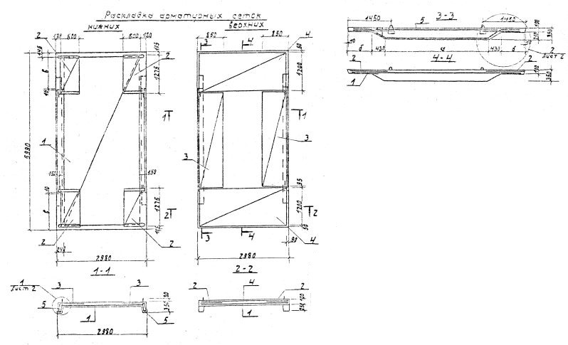
Чертеж изделия:
Характеристики изделия:
ПараметрЗначение
Длина5990 мм
Ширина2980 мм
Высота350 мм
Масса5200 кг
Нормативный документСерия 3.702.1-4

П 6.2-1   Плита надсилосная по Серии 3.702.1-4.