ЛК 298.140.100

Чертеж изделия:
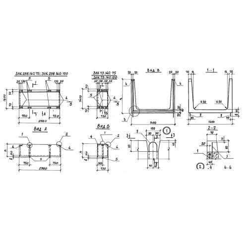
Характеристики изделия:
ПараметрЗначение
длина2980 мм
ширина1400 мм
высота1000 мм
вес2420 кг
серия3.818.9-2

ЛК 298.140.100 Лотки для каналов навозоудаления по серии 3.818.9-2.