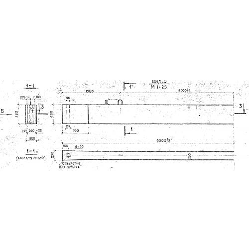
Б 2 подтротуарная балка

Чертеж изделия:
Характеристики изделия:
ПараметрЗначение
длина9000 мм
ширина250 мм
высота480 мм
масса2180 кг
нормативный документСерия 3.820-13

Б 2  Подтротуарные балки по Серии 3.820-13.