ДР-10

Чертеж изделия:
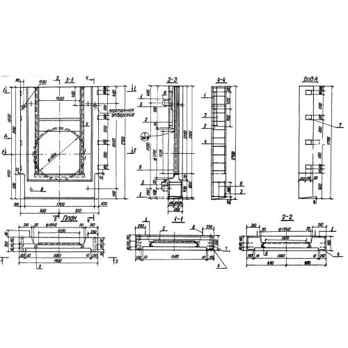
Характеристики изделия:
ПараметрЗначение
длина1900 мм
ширина350 мм
высота2700 мм
масса2475 кг
нормативный документСерия 3.820-6

ДР-10 Диафрагмы для регуляторов с закладной рамой по Серии 3.820-6.