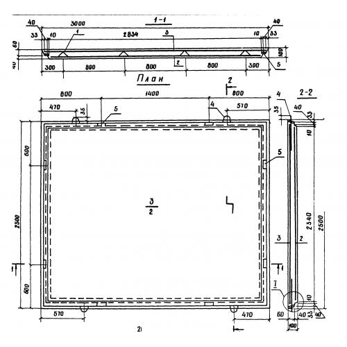
ПКу 30-25

Чертеж изделия:
Характеристики изделия:
ПараметрЗначение
длина3000 мм
ширина2500 мм
высота100 мм
масса1800 кг
нормативный документСерия 3.820.1-70

ПКу 30-25  Плиты усиленные для крепления откосов мелиоративных каналов по Серии 3.820.1-70.