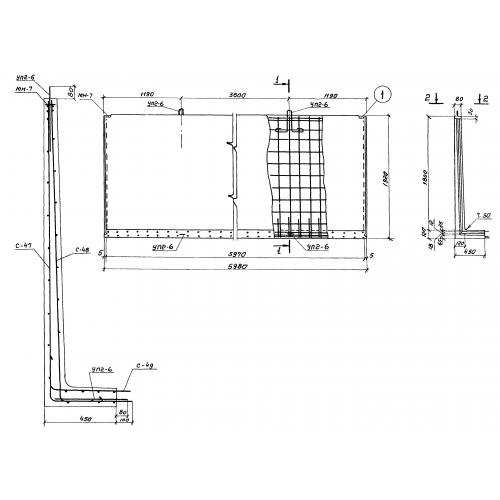
ЛТ 2-18 Лотковый элемент L-образного вида

Чертеж изделия:
Характеристики изделия:
ПараметрЗначение
длина5980 мм
ширина450 мм
высота1920 мм
масса3500 кг
нормативный документСерия 3.900.-3

ЛТ 2-18 Лотковые элементы по Серии 3.900.-3.