ПСТ стеновая панель торцевая

Чертеж изделия:
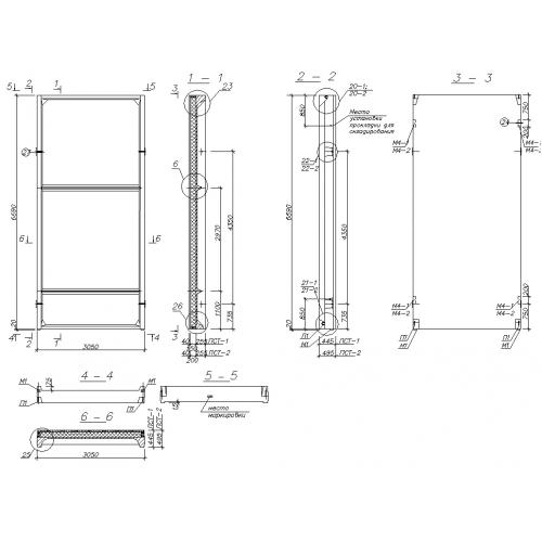
Характеристики изделия:
ПараметрЗначение
длина3050 мм
ширина445 мм
высота6690 мм
масса4600 кг
нормативный документСерия 7018-М

ПСТ   Панели стеновые торцевые по Серии 7018-М.