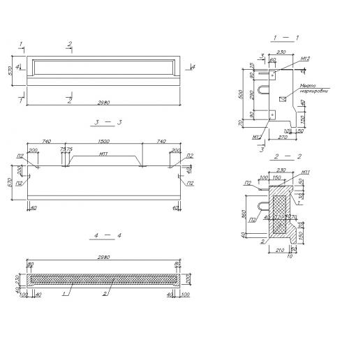
ПК Карнизная панель

Чертеж изделия:
Характеристики изделия:
ПараметрЗначение
длина2980 мм
ширина270 мм
высота570 мм
масса555 кг
нормативный документСерия 7075-М

ПК Карнизные панели по Серии 7075-М.