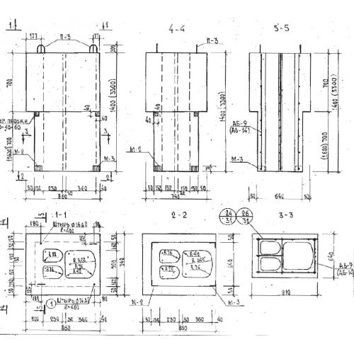
ВШ-7 вентшахты
Характеристики изделия:
| Параметр | Значение |
|---|---|
| длина | 860 мм |
| ширина | 740 мм |
| высота | 3300 мм |
| масса | 1538 кг |
| нормативный документ | Серия Б1.134.1-7 |
Цена:
Рассчитать стоимостьВШ-7 Армированные вентиляционные шахты из бетона по Серии Б1.134.1-7.
| Параметр | Значение |
|---|---|
| длина | 860 мм |
| ширина | 740 мм |
| высота | 3300 мм |
| масса | 1538 кг |
| нормативный документ | Серия Б1.134.1-7 |
ВШ-7 Армированные вентиляционные шахты из бетона по Серии Б1.134.1-7.
